Makléř: Růžena Machartová
Telefon: 739 277 ...
E-mail: nemorea ...
Zobrazit celý kontaktTelefon: 739 277 772
E-mail: nemoreality@nemoreality.cz
Nemovitost nabízí
NEMO reality, s.r.o.
Kostelní náměstí 17, Prachatice
Zobrazit kontakt na RK388 319 990
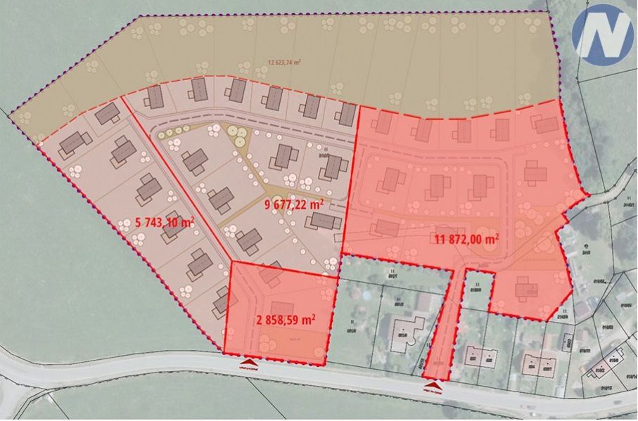
Nabízíme k prodeji soubor rozsáhlých pozemků o celkové výměře 42 343 m, nacházející se v malebném katastrálním území Frymburk, konkrétně v obci Milná (14 730m2 k okamžitému zastavění, 15 420m2 územní rezerva, 12 193m2 zemědělská plocha, zahrada). Tento atraktivní pozemek představuje vynikající investiční příležitost pro developerské projekty a následnou individuální výstavbu v souladu s územním plánem. Pozemek se nachází v klidné části obce Milná, navazuje na stávající zástavbu a je velmi dobře přístupný. Příjezd je zajištěn po veřejné komunikaci, která se nachází na hranici pozemku. Díky své strategické poloze nabízí pohodlnou dostupnost k veškeré občanské vybavenosti v blízkém Frymburku. Podle platného územního plánu je pozemek určen pro výstavbu vesnických smíšených objektů. To znamená, že je zde možné realizovat nejen rodinné domy, ale i objekty s kombinovaným využitím, například s bydlením a drobným podnikáním. Tato variabilita činí pozemek velmi atraktivním pro široké spektrum investorů a stavebníků. Pozemek není zasíťovaný, avšak na jeho hranici se nachází: Vodovod napojení na obecní vodovodní řad. Elektřina možnost připojení k elektrické síti. Veřejná komunikace zajišťující snadný přístup. V lokalitě není dostupná plynová přípojka ani kanalizace, což však nebrání efektivnímu řešení odpadního hospodářství prostřednictvím individuálních čističek odpadních vod, septiků či dalších řešení. Po dohodě s městysem možnost vybudování čističky odpadních vod, která je zde již plánovaná. Pozemek je mírně svažitý, s orientací směrem na jihozápad, což zajišťuje výborné světelné podmínky a příjemné klima pro budoucí stavby. Tato orientace je také ideální pro využití solárních technologií. Z pozemku se otevírá nádherný výhled na vrcholky Šumavy a částečně také na hladinu vodní nádrže Lipno, která je vzdálena pouhé 2 km. Tato poloha nabízí nejen krásné panoramatické scenérie, ale i možnost rekreačního využití v podobě vodních sportů, rybaření či cykloturistiky v této oblíbené turistické oblasti. Mimo to je velkou výhodou této lokality, že město Frymburk získalo status léčebných přírodních lázní. Na základě toho zde vzniká rašelinný balneolázeňský provoz. Z tohoto důvodu bude požadavek na rezidentní trvalé bydlení. V případě zájmu o více informací nebo prohlídku nás neváhejte kontaktovat. <a href="https://www.eurobydleni.cz/pozemky/stavebni-pozemek-bydleni/cesky-krumlov/obec-frymburk/prodej/"><strong>Prodej stavebního pozemku Frymburk</strong></a>
Milná, parcely na Lipně 14 730 m2
Nabízíme k prodeji rozsáhlý pozemek o celkové výměře 14 730 m, nacházející se v malebném katastrálním území Frymburk, konkrétně v obci Milná. Tento…
Stavební pozemky u břehu Lipna - LIPNO LOGGIA
Představujeme exkluzivní stavební waterfront pozemky přímo u břehu Lipna v lokalitě Frymburské pole. Projekt Lipno Loggia - Jedná se o zcela…
Prodej stavebního pozemku Frymburk na Eurobydleni.cz